沼渣固液分离工段:
|
|
LNG热风炉:
|
|
高湿物料烘干工段:
|
|
|
|
尾气工段:
|
|
从厂区规划、工艺设计、设备选型、设备制作、设备安装、试运行直至交付正式投产,潍坊隆福全程跟踪服务
关于高湿物料烘干机

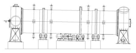
高湿物料烘干机外形图
高湿物料烘干机可将含水量65%~70%的物料一次烘干至终含水量25%~30%,比较适用于结构疏松的物料(牛粪、猪粪、秸秆、药渣、稻壳鸡粪等)。
高湿物料干燥机前端7~8米处扬料板可将物料无死角的扬起在筒体中间,与来自LNG热风炉的热量百分之百接触,达到热利用率百分之百的目的,此时物料处于迅速升温阶段;筒体中间段8~18米处的物料处于水分散发阶段,散发的水蒸气被尾部风机吸走;筒体尾部19~26处温度慢慢降下来,物料水分达到标准。
高湿物料干燥机采用顺流烘干工艺;高湿物料烘干机为一横向转动的筒体,前后两套托轮装置,整套设备操作简单,维护简便;筒体外部振打装置可防治筒体粘壁;筒体前后全密闭,防治粉尘及干燥臭气溢出车间。
规格 | 筒体 | 生产能力 (m3/h) | 减速机 | 功率 (KW) | |||
内径(mm) | 长度(mm) | 倾角(°) | 转速(rpm) | ||||
HG1624 | 1600 | 24000 | 1.5 | 5.1 | -6 | ZQ650 | 15 |
HG1824 | 1800 | 24000 | 1.5 | 4.5 | -8 | ZQ650 | 18.5 |
HG2024 | 2000 | 24000 | 1.5 | 4.66 | -10 | ZQ750 | 22 |
HG2224 | 2200 | 24000 | 1.5 | 3.92 | -16 | ZQ850 | 37 |
HG2424 | 2400 | 24000 | 1.5 | 3.6 | -18 | ZQ850 | 45 |
HG2626 | 2600 | 26000 | 1.5 | 3.42 | -20 | ZQ1000 | 55 |
HG2828 | 2800 | 28000 | 1.5 | 2.81 | -22 | ZL115 | 75 |
网址:www.mkcoback.cn
联系方式:王总13953699265
孙总 18263637732
9立方沼渣干燥 2018-11-19 本文被阅读 3087 次
| 上一条:6立方沼渣干燥 | 下一条:6立方沼渣干燥 |














