文氏(文丘里)尾气洗涤器是一种高效湿法除尘器,主要特点是:
a.结构简单紧凑、体积小、占地少、价格低;
b.既用于高温烟气降温,高温、高湿和易燃气体的净化,也可净化含有微米和亚微米粉尘及易于被洗涤液吸收的有毒有害气体如氨气、二氧化硫、氯化氢、硫酸等。
|
|
|
|
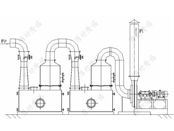
①文丘里洗涤除尘器是一种具有高除尘效率的湿式除尘器。实际应用的文丘里除尘器是一套系统设备,由文丘里洗涤器、除雾器(或气液分离器)填料洗涤塔,沉淀池和循环水泵等多种装置所组成。
②文丘里洗涤除尘器的捕集机理与除尘过程
文丘里洗涤除尘器对粉尘的捕集主要是惯性碰撞机理起作用,扩散沉降机理对小于0.1μm的细小粉尘才有明显的作用。 文丘里洗涤除尘器的除尘包括三个过程:含尘气流由收缩管进入喉管流速急剧增大,洗涤液(一般为水)通过沿喉管周边均匀分布的喷嘴喷入,液滴被高速气流冲击进一步雾化成更细小的水滴,此过程称为雾化过程;在喉管中气液两相得到充分混合,粉尘粒子与水滴碰撞沉降效率很高。进入扩张管后,气流降低,静压逐渐增大,水滴与粉尘颗粒凝聚成较大的含尘水滴,这一过程称为凝聚过程。气体随后进入除雾器实现了气液分离,达到除尘目的,这一过程称为分离除尘过程。雾化过程和凝聚过程是在文丘里管内进行的;分离除尘过程是在除雾器或其他分离装置如填料洗涤塔中完成的。
净化后的气体从除雾器顶部排出,含尘废水由除雾器锥形底部排至沉淀池。
网址:www.mkcoback.cn
联系方式:王总13953699265
孙总 18263637732
| 上一条:青海都兰茂丰生物有机肥料有限责任公司 | 下一条:脉冲式布袋除尘器 |









